info@snjelecdesign.lk +94 71 191 3026

Power supply - 32A 3Phase


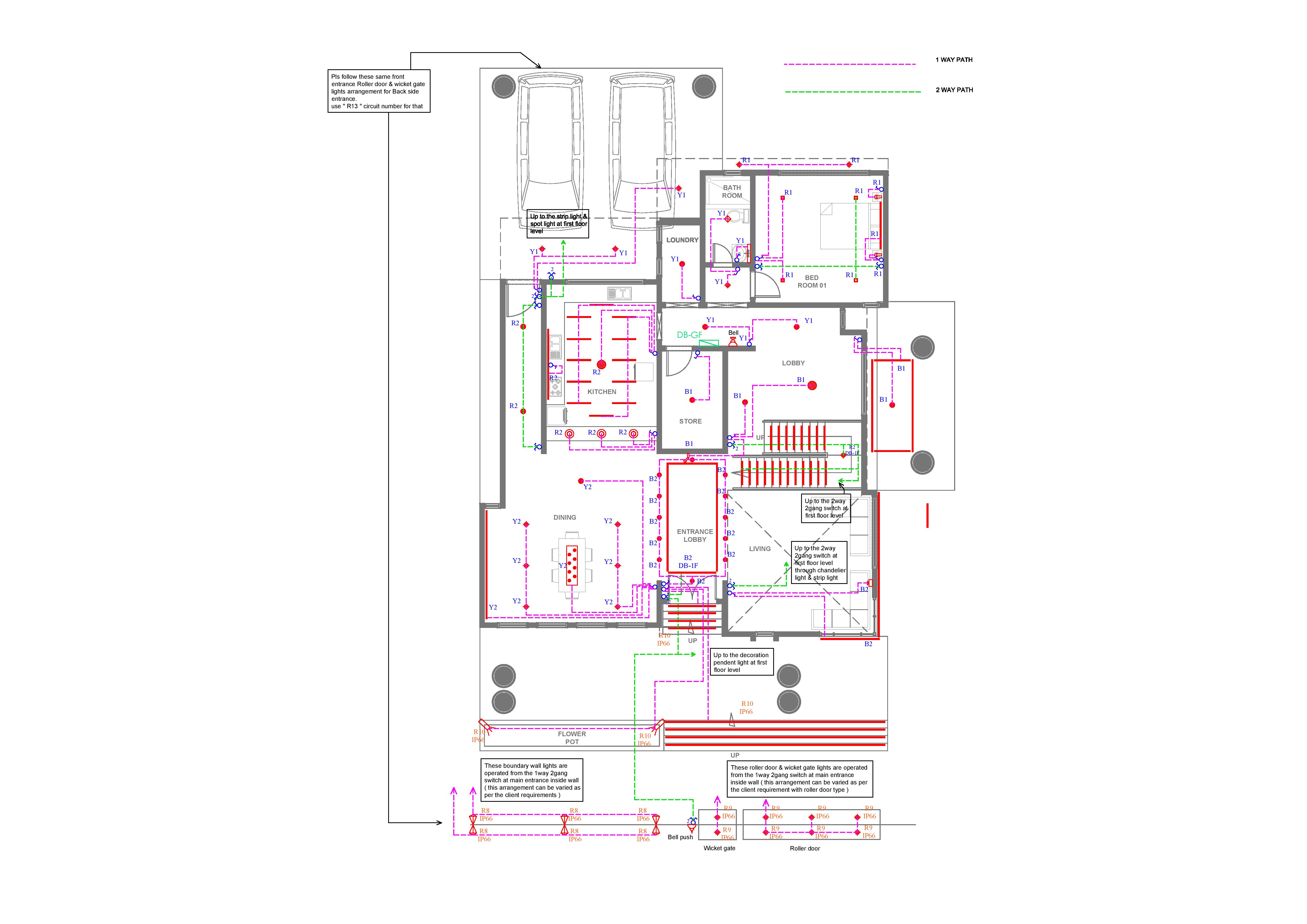
Structure (5362sqft)


Ground floor

1no bed room

1no bath room

Laundry 

Kitchen

Store

Dining

living


First floor

3nos bed room

3nos bath room

Entertainment area


Architectural & 3D Design by

Gee creation (Pvt)Ltd



Aruna house

Location
: Kandy
Status
: Completed