info@snjelecdesign.lk +94 71 191 3026

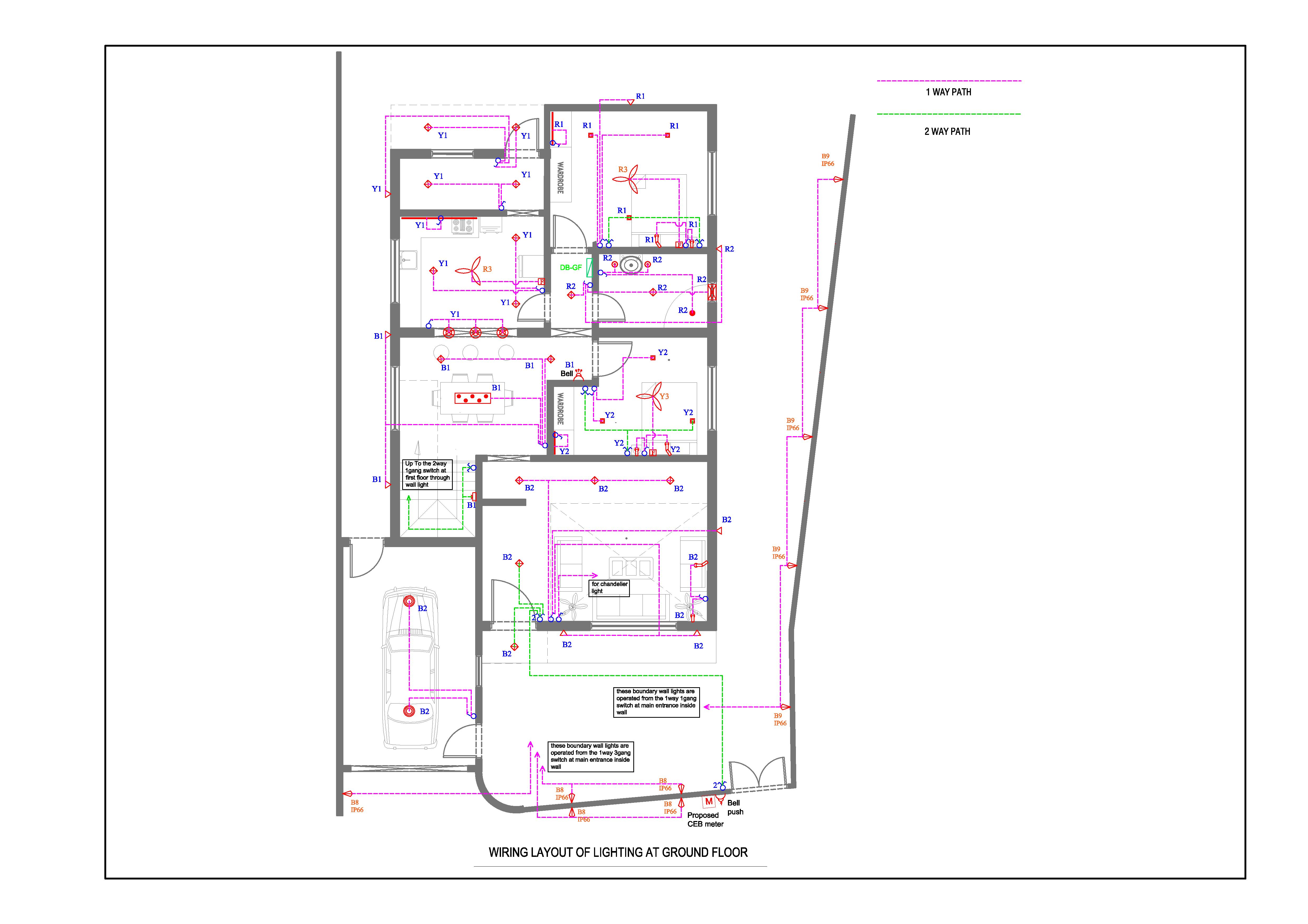
Structure ( 2951sqft)


Power supply - 32A 3phase


Ground Floor - 2nos bed room / wet kitchen / kitchen / dining / bathroom / living /car porch


First Floor - 3nos bed room / bath room / TV lobby


Architectural & 3D Design By,


Gee Creation

Dhanushka House

Location
: Kandy
Status
: Completed