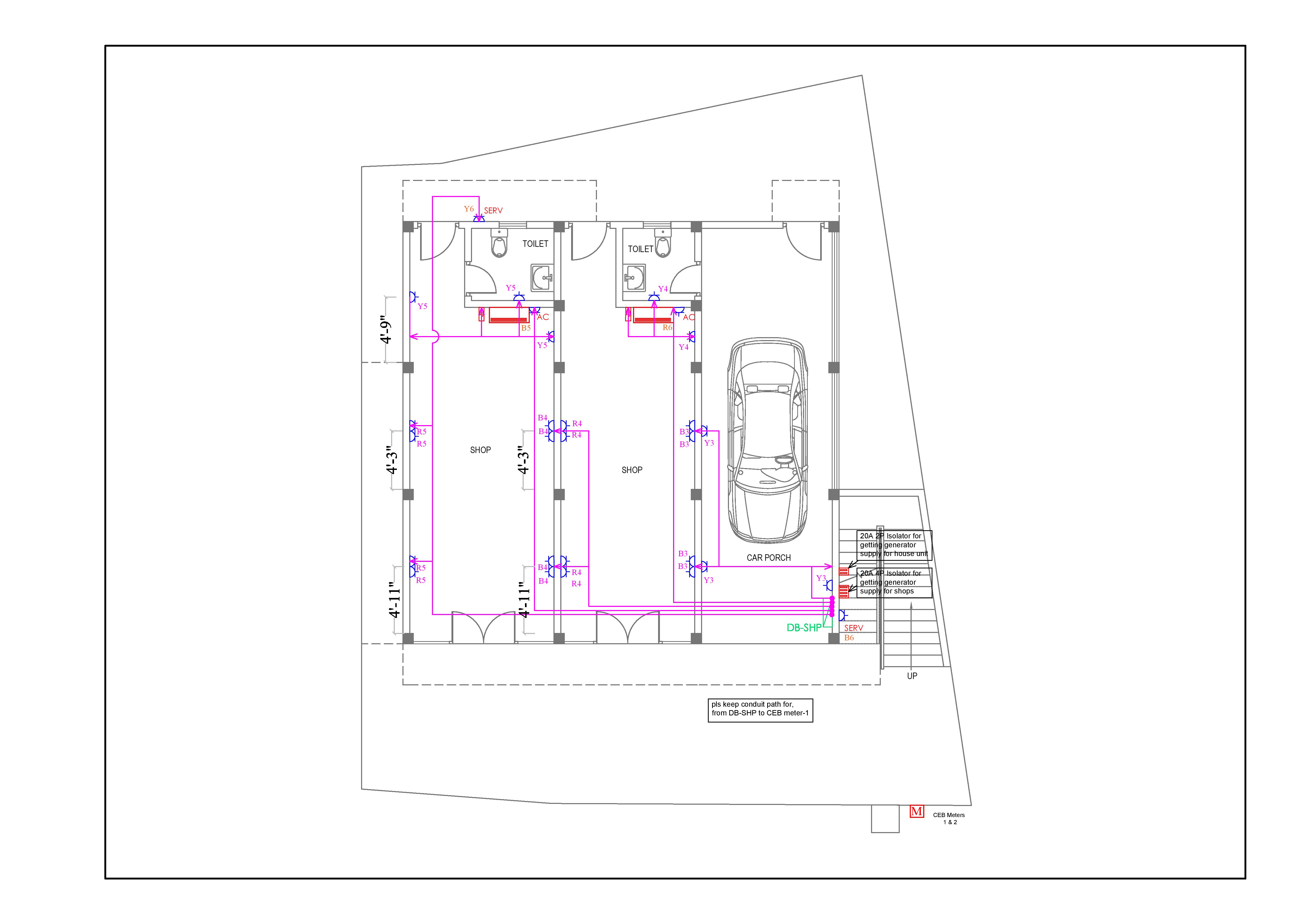
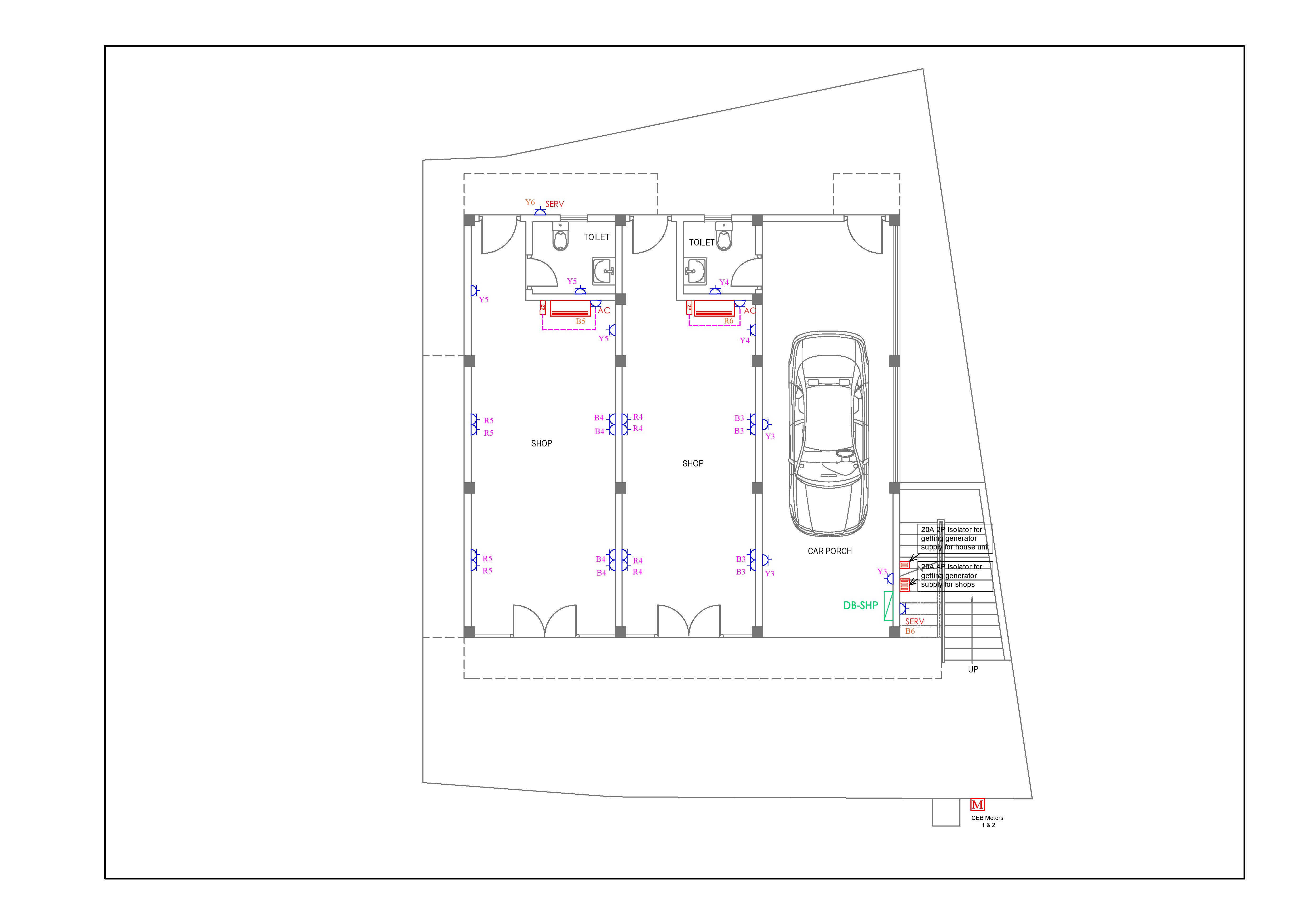
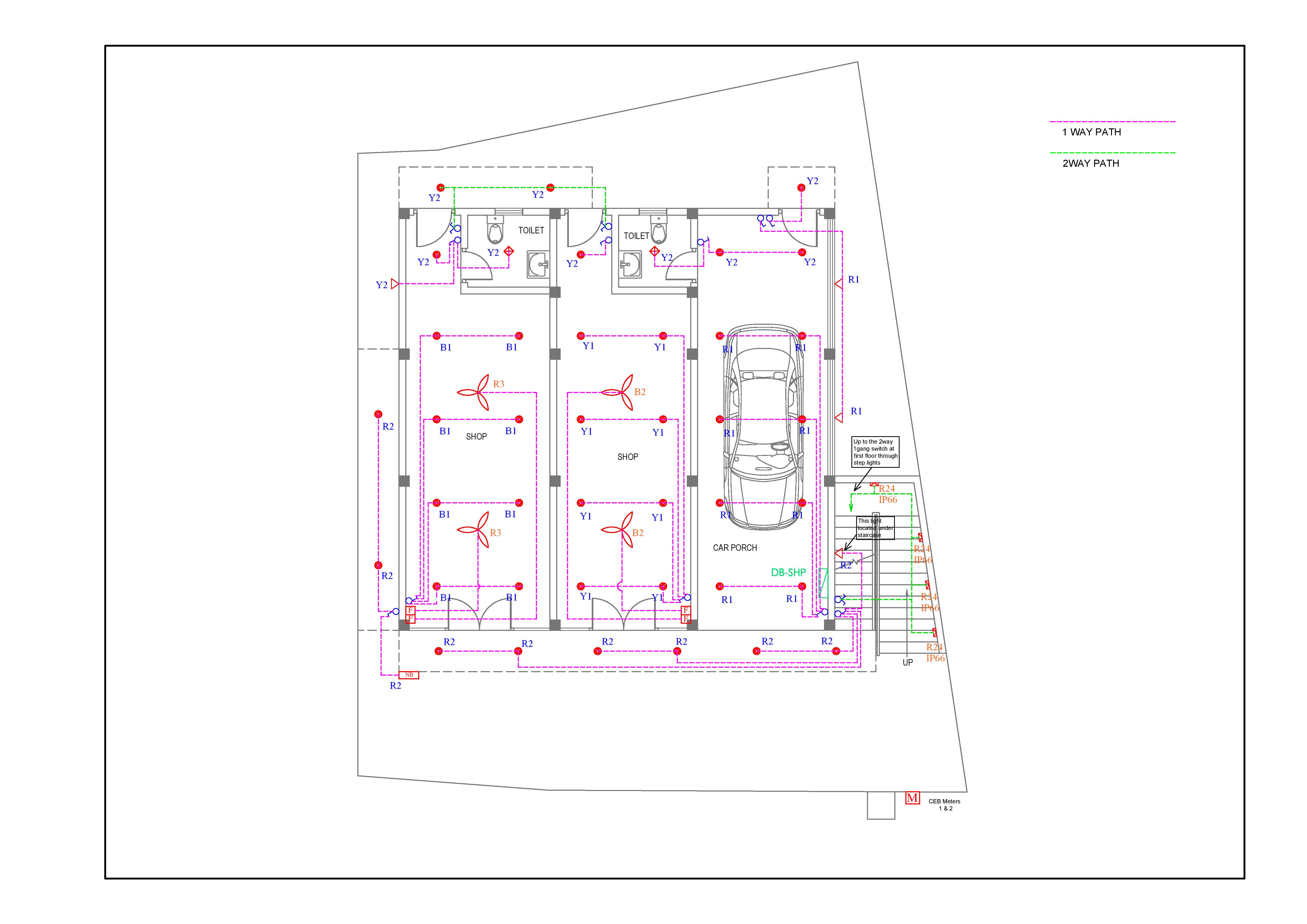
Power supply - 32A 3Phase
Structure (2370sqft)
Ground floor
2nos shops / Car porch / 2nos bath room
First floor
Living / M.Bed room / 2nos bed room / Bath room / Dining / Kitchen
Architectural & 3D Design by
Elisha Homes